Detail

Business building on an excellent location in Kisela Voda.

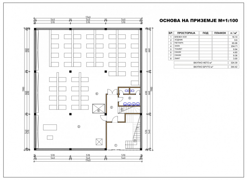
The business building has a total area of 1050m2, which is spread over three levels: -1 level, ground floor and level 1.

The facility is located on a plot with a total area of 811m2, where parking for several vehicles is also available.

Heating and cooling in the building are regulated through fan coils, underfloor heating and chillers.

In addition, the building has a permit from the municipality for the installation of photovoltaics, and is in the process of obtaining a permit from EVN.

The monthly lease price for the building is 5000 euros + VAT.


Real Estate Agent: Oliver Stojanoski
Contact: +389 71 268 051
Email: sales@propertyone.mk

Info
Contact
+389 78 30 60 83
bul. 8 Septemvri br.3
Skopje, 1000, Macedonia