Detail

Оffice space of 84m2 with yard, located in a high-traffic location in Center is available for rent.

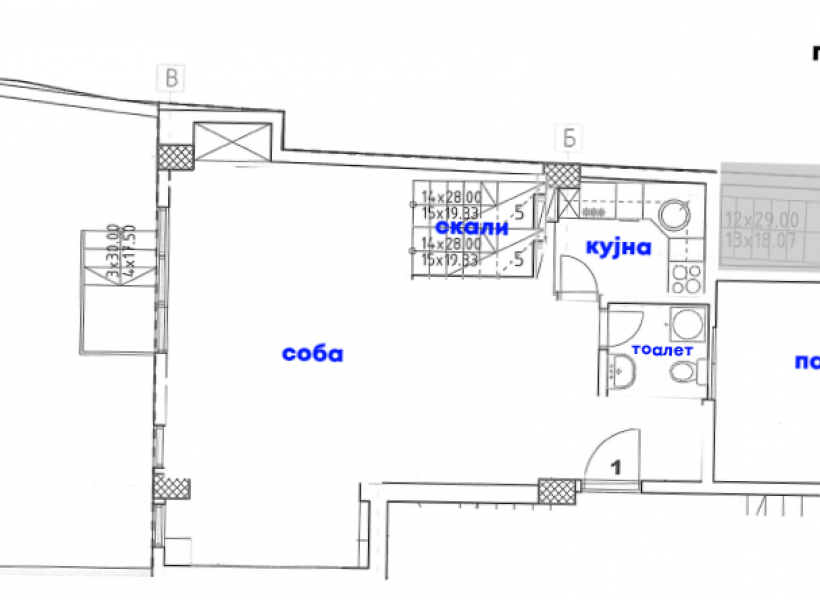
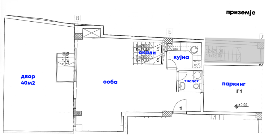
The duplex commercial space includes:

Ground floor: spacious office, kitchen, guest toilet, and yarda 40 m2.
First floor: two offices, a storage room, and a toilet.

Heating and cooling are provided by electric central heating and air conditioning units.

Personal parking space is available right next to the building entrance.

 

Real Estate Agent: Oliver Stojanoski

Info
24h controlled access
air conditioning
cable / satellite tv
empty
intercom
internet / wi-fi
parking / garage
private heating
yard / garden
Contact
+389 78 30 60 83
bul. 8 Septemvri br.3
Skopje, 1000, Macedonia