Detail

Fully-Equipped office space in an excellent location in Debar Maalo is available for rent.

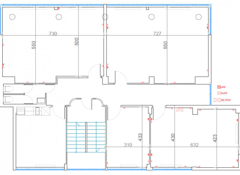
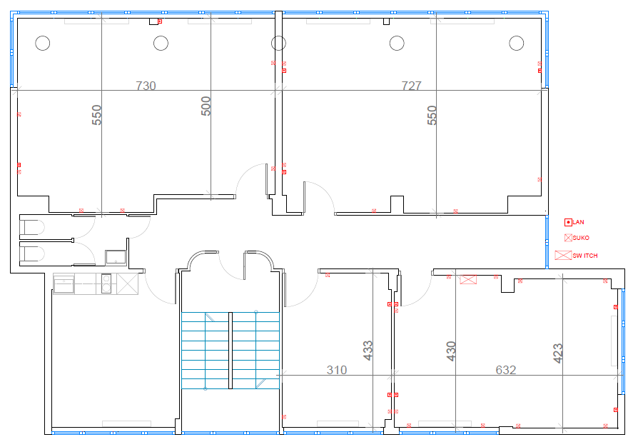
Office space consists of:

  • One open space area

  • Two offices

  • Equipped kitchen

  • Toilet

Heating and cooling are regulated through inverter air conditioning units.

One parking space is available.

 

Sales Agent - Oliver Stojanoski

 

Info
24h controlled access
air conditioning
cable / satellite tv
elevator
equipped
equipped kitchen
fully equipped
internet / wi-fi
parking / garage
private heating
Contact
+389 78 30 60 83
bul. 8 Septemvri br.3
Skopje, 1000, Macedonia