
За продавање
Нови станови во изградба во Гази Баба
ID8785A
Тип
Стан Површина
47 m² Соби
2 Локација
Гази Баба Цена
1.185 €

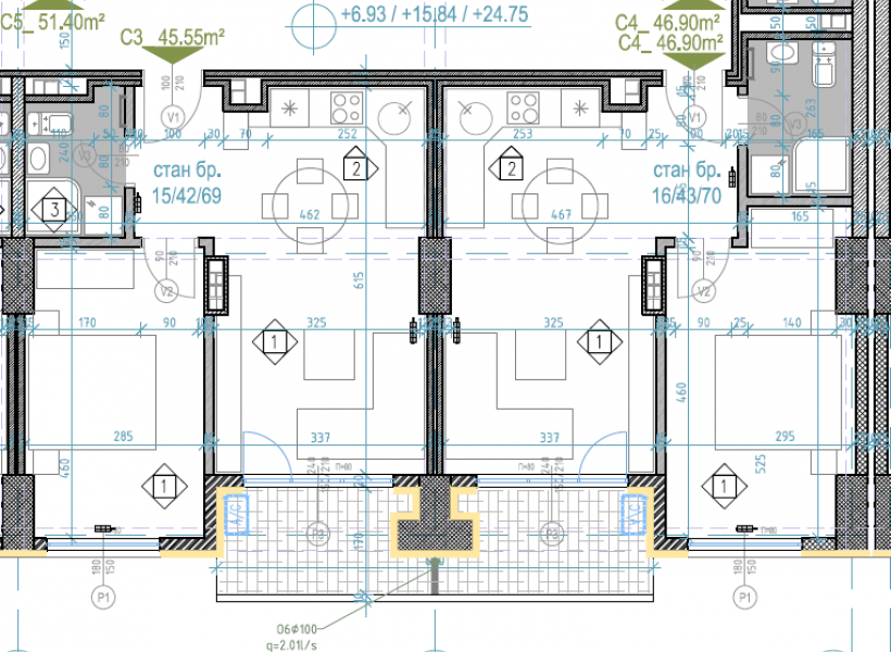
Се продаваат нови станови во фаза на изградба во Гази Баба.
На располагање се станови со следните квадратури:
1. Стан од 47м2, со една спална соба, бања и тераса.
2. Стан од 45м2, со една спална соба, бања и тераса.
Становите се лоцирани на втор кат.
Греењето и ладењето во зградата е предвидено преку инвертер клима уреди.
Со становите следува по едно паркинг место во подземна гаража, на - 1 ниво, со доплата од 5000еур.
Зградата се очекува да биде готова до 31.03.2023.
Продажен Агент - Ѓурѓица Андонов: